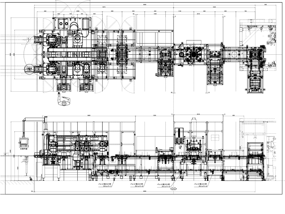
自動車駆動部品 自動積層・高さ測定設備

TRANSPOSITION
AND
HEIGHT
MC

トレーサビリティーに対応

特長1:ブロック自動積載組立

QRコード刻印

カメラによる位相決め後、QRコードを刻印、搬送してブロックを積層

特長2:積載組立高さ測定検査

積層高さを自動測定し、NG品・良品を振り分け

ご相談から納品までの流れ

お客様と当社スタッフが同じ目線で研究し、完成度の高い製品をお届けするため、
納品まで以下のようなプロセスで製品化しております。

  • 1

    お問い合わせ

  • 2

    お打ち合わせ

  • 3

    設計

  • 4

    構想・お見積り

  • 5

    製作

  • 6

    納品

このページで紹介している、品質検査装置、自動車部品 品質検査装置などご質問がありましたら、お気軽にご相談ください。