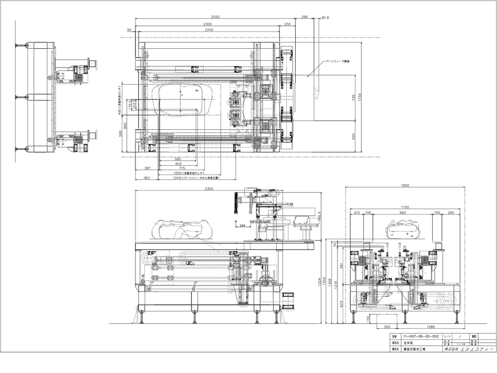
燃料タンクマウント裏面溶着加工装置
FUEL
TANK
MOUNT
BACKSIDE
WELDING
PROCESSING
EQUIPMENT
ご相談から納品までの流れ
お客様と当社スタッフが同じ目線で研究し、完成度の高い製品をお届けするため、
納品まで以下のようなプロセスで製品化しております。
- 1
お問い合わせ
- 2
お打ち合わせ
- 3
設計
- 4
構想・お見積り
- 5
製作
- 6
納品
このページで紹介している、自動車部品 製造・加工機、各種 専用装置などご質問がありましたら、お気軽にご相談ください。

