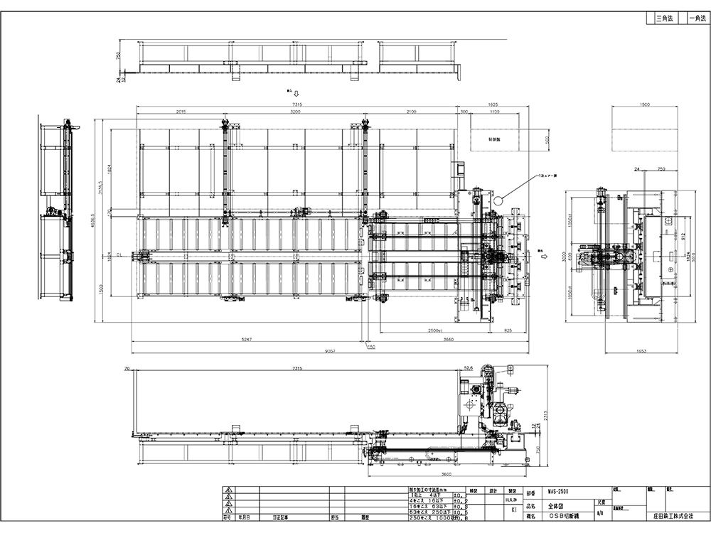
外壁用OSB正寸クロスカット機
EXTERIOR
WALL
MATERIAL
OSB
EXACT
SIZE
CUTTING
NC
ROUTER
ご相談から納品までの流れ
お客様と当社スタッフが同じ目線で研究し、完成度の高い製品をお届けするため、
納品まで以下のようなプロセスで製品化しております。
- 1
お問い合わせ
- 2
お打ち合わせ
- 3
設計
- 4
構想・お見積り
- 5
製作
- 6
納品
このページで紹介している、木工機械、住宅関係部品 製造 加工機などご質問がありましたら、お気軽にご相談ください。

